NEW

守山市播磨田町 天然木ガレージハウス建売モデル

4,498万円

滋賀県守山市播磨田町

東海道本線「守山」駅徒歩45分

東海道本線「守山」駅バス15分近江鉄道・湖国バス「河西口」停歩9分

東海道本線「野洲」駅徒歩51分

価格
4,498万円
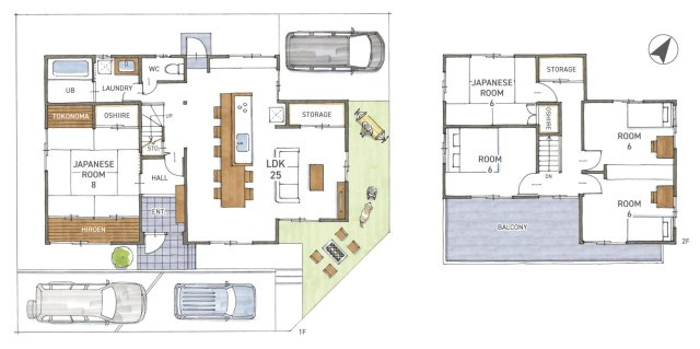
間取り
3LDK+S(納戸)
土地面積
175.07㎡
所在地
滋賀県守山市播磨田町
交通

東海道本線守山」駅 徒歩45分

東海道本線守山」駅 バス15分 近江鉄道・湖国バス「河西口」 停歩9分

東海道本線野洲」駅 徒歩51分

建物面積
115.38㎡
築年月
2023年10月(築2年)

オープンハウス

日時  10:00 ~ 18:00
  • ※事前に必ず予約してください
  • "滋賀県内各地にモデルハウスとしてご見学いただける新築分譲が続々と竣工中です。
    建物のご見学と一緒に、周辺環境のご案内もさせていただきます。
    新生活のスタートもつかみやすいと思います。土日祝日もご見学いただけます。お日にち・お時間、お気軽にご相談ください。

    ~ご相談・見学までの流れ~
    ◆Step1:ご相談
    まずはお気軽にご相談ください。
    物件のメリット・デメリット、ここだけの耳寄りな情報をお伝えします!

    ◆Step2:スケージュール調整
    平日・土日・祝祭日問わず、お仕事帰りでも可能です!
    お客様のご都合をお聞かせ下さい。

    ◆Step3:ご見学
    ご要望に合う物件なども合わせてご見学いただけます。
    "

物件の特徴

  • バストイレ別

  • 室内洗濯機置場

  • TVモニタ付きインターホン

  • カウンターキッチン

  • 独立洗面台

セールスポイント

★天然木”百年杉”ダイニングテーブルカウンター一体型
★プライベート感のある人工芝の庭
★家具・照明・リビングエアコン付き♪

ポイント

2駅利用可 土地50坪以上 3口以上コンロ 築2年以内

基本情報

販売戸数
1戸
総戸数
-
間取り / 詳細
3LDK+S(納戸)
LDK 20.2帖 1室/洋室 6.0帖 1室/洋室 5.3帖 1室/洋室 4.8帖 1室/S 3.0帖 1室
向き
-
建物面積(坪数)
115.38㎡(34.9坪)
土地面積(坪数)
175.07㎡(52.95坪)
建ぺい率 /
容積率
60%/160%
築年月
2023年10月(築2年)
駐車場 /
月額料金
有  インナーガレージ!
土地権利
所有権
土地
(敷金 / 保証金)
- / -
建物構造
木造 / 2階建
傾斜地部分面積
-
路地状敷地
-
私道負担面積
-
セットバック
高圧線下面積
-
施工会社
(株)COLORS工務店
用途地域
第一種住居
地目 / 地勢
宅地 / 平坦
接道状況
一方(北東 公道 4.0m 間口 4.0m)
国土法届出要否
不要
都市計画
市街化区域
総区画数 /
販売区画数
-/1区画
現況
居住中
その他
法令上の制限
-
取引態様
売主
引渡し
2026年5月中旬
取引条件の
有効期限
2026年02月22日

設備条件

設備条件
  • 陽当り良好 / 閑静な住宅地 / オープンハウス / 室内洗濯機置場 / フローリング / 公営水道 / 公共下水 / 電気有 / 駐車3台可 / IHクッキングヒーター / コンロ2口以上 / 食器洗い乾燥機 / システムキッチン / カウンターキッチン / コンロ3口 / バス・トイレ別 / 浴室1坪以上 / 独立洗面台 / ウォークインクロゼット / ウォークインシューズクロゼット / 食品庫 / 収納豊富 / TVモニタ付インターホン
設備(その他)
    -

その他

物件番号
94757491
管理コード
-
建築確認番号
第R05確認建築滋建住00696号
情報更新日
2026年02月08日
次回更新予定日
2026年02月22日
取扱会社
  • TOMO COLORS(トモカラーズ)
  • 滋賀県草津市野路4丁目1-7 
  • TEL:077-596-3703
  • 国土交通大臣 (1) 第10814号
  • (公社)滋賀県宅地建物取引業協会
備考
★天然木”百年杉”ダイニングテーブルカウンター一体型
★プライベート感のある人工芝の庭
★家具・照明・リビングエアコン付き♪

太陽光発電有り(ソラトモサービス)7.03kw

別途費用:
外構 220万円

周辺施設

  • やまぐち内科医院の画像

    内科

    やまぐち内科医院

    217m(3分)

  • LAMU(ラムー) 守山店の画像

    ディスカウントショップ

    LAMU(ラムー) 守山店

    400m(5分)

  • セブンイレブン 守山播磨田町店の画像

    コンビニエンスストア

    セブンイレブン 守山播磨田町店

    455m(6分)

  • かさはら医院の画像

    整形外科

    かさはら医院

    501m(7分)

  • 守山播磨田郵便局の画像

    郵便局

    守山播磨田郵便局

    700m(9分)

  • フレンドマート 河西店の画像

    スーパー

    フレンドマート 河西店

    850m(11分)

  • キリン堂 守山播磨田店の画像

    ドラッグストア

    キリン堂 守山播磨田店

    1100m(14分)

  • カナリヤ第二保育園の画像

    保育園

    カナリヤ第二保育園

    1214m(16分)

  • 守山市民運動公園の画像

    公園

    守山市民運動公園

    1299m(17分)

  • Valor(バロー) 守山小島店の画像

    スーパー

    Valor(バロー) 守山小島店

    1400m(18分)

  • クスリのアオキ川田店の画像

    その他

    クスリのアオキ川田店

    1400m(18分)

  • モリーブの画像

    ショッピングセンター

    モリーブ

    1400m(18分)

  • 守山市立守山北中学校の画像

    中学校

    守山市立守山北中学校

    1500m(19分)

  • 守山ふれあい公園の画像

    公園

    守山ふれあい公園

    1900m(24分)

  • 済生会守山市民病院の画像

    総合病院

    済生会守山市民病院

    2000m(25分)

  • 守山市役所の画像

    市役所・区役所

    守山市役所

    2300m(29分)

支払いシミュレーション

月々の支払額
9.6
購入希望物件価格
万円
頭金
万円
金利
%
返済額(ボーナス1回分)
万円
返済期間

※ボーナスは自動で年2回分で計算されます。

近隣の物件

  1. 守山市金森町 中古戸建 天然木フルリノベーション

    守山市金森町

    5LDK (135.75㎡)

    4,498万円

守山市播磨田町 天然木ガレージハウス建売モデル

守山市播磨田町 天然木ガレージハウス建売モデル

4,498万円

-

3LDK+S(納戸)(115.38㎡)

お気軽にお問い合わせください

無料お問い合わせ

TOMO COLORS(トモカラーズ)

077-596-3703

10:00~19:00

(休: 水曜日)